所在地:秋田県秋田市
完成:2024年5月
構造・用途:新木造軸組工法・戸建
工事種別:新築
敷地面積:198.51m²(60.04坪)
延床面積:110.96m²(33.55坪)
UA値:0.323W/m²・K
C値:0.3cm²/m²




| 【データ】 | ||
| 構造 | 軸組工法(無垢材+プレカット+HSS金物) | |
| 階数 | 2階建て | |
| 敷地面積 | 198.51m²(60.04坪) | |
| 建築面積 |
67.07m²(20.29坪) | |
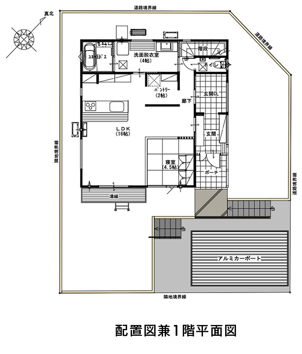
| 1階床面積 | 63.76m²(19.28坪) | |
| 2階床面積 | 47.20m²(14.27坪) | |
| 延べ床面積 | 110.96m²(33.55坪) | |
| 施工床面積 | 114.27m²(34.55坪) | |
| 断熱工法 | 外張り断熱工法+充填断熱 | |
| C値(相当隙間面積) | 0.3cm²/m²以下 | |
| UA値(外皮平均熱貫流率) | 0.323W/m²・K | |
| 省エネ等級 | 6等級 | |
| 換気システム | 第三種24時間型換気システム |
| 【主な仕様】 | ||
| 屋根 | 長尺亜鉛アルミ合金鋼板t0.35 | |
| 外壁 | 金属サイディングt10 | |
| 玄関ドア | 木製断熱玄関ドア | |
| 窓 | 樹脂製断熱サッシ | |
| 玄関床 | 300角磁器質タイル | |
| 室内床 | 合板+パインフロアー | |
| 室内壁 | クロス | |
| 室内天井 | クロス+羽目板 | |
| 【主な設備】 | ||
| システムキッチン | W2550 食洗器+IH | |
| カップボード | W1800 | |
| 洗面化粧台 | W1245 | |
| 浴室 | 1616 | |
| トイレ | 洋風便器シャワー付き | |
| 給湯器 | エコキュート | |
| 冷暖房 | ヒートポンプエアコン |