所在地:秋田県秋田市
完成:2023年8月
構造・用途:新木造軸組工法・戸建
工事種別:新築
敷地面積:255.34m²(77.24坪)
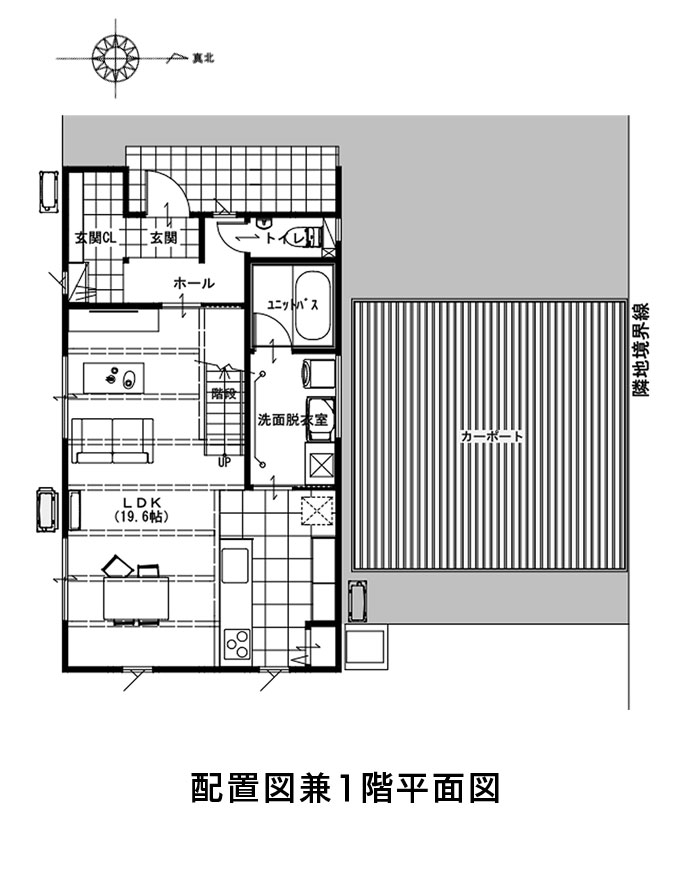
延床面積:90.52m²(27.38坪)
UA値:0.33W/m²・K
C値:0.3cm²/m²






| 【データ】 | ||
| 構造 | 軸組工法(無垢材+プレカット+HSS金物) | |
| 階数 | 2階建て(一部小屋裏) | |
| 敷地面積 | 255.34m²(77.24坪) | |
| 建築面積 |
54.65m²(16.53坪) | |
| 1階床面積 | 50.78m²(15.36坪) | |
| 2階床面積 | 39.74m²(12.02坪) | |
| 延べ床面積 | 90.52m²(27.38坪) | |
| 小屋裏床面積 | 17.39m²(5.26坪) | |
| 施工床面積 | 94.39m²(28.55坪) | |
| 断熱工法 | 外張り断熱工法+充填断熱 | |
| C値(相当隙間面積) | 0.3cm²/m²以下 | |
| UA値(外皮平均熱貫流率) | 0.33W/m²・K | |
| 省エネ等級 | 6等級 | |
| 換気システム | 第三種24時間型換気システム |
| 【主な仕様】 | ||
| 屋根 | ガルバリウム鋼板t0.35 | |
| 外壁 | 金属サイディングt15 | |
| 玄関ドア | 断熱玄関ドア | |
| 窓 | 樹脂製断熱サッシ | |
| 玄関床 | 300角磁器質タイル | |
| 室内床 | パインフロアー | |
| 室内壁 | クロス | |
| 室内天井 | クロス+羽目板 | |
| 【主な設備】 | ||
| システムキッチン | W2550 食洗器+IH | |
| カップボード | W1650 | |
| 洗面化粧台 | W900 | |
| 浴室 | 1616 | |
| トイレ | 洋風便器シャワー付き | |
| 給湯器 | エコキュート | |
| 冷暖房 | ヒートポンプエアコン |