所在地:秋田県秋田市
完成:2024年4月
構造・用途:新木造軸組工法・戸建
工事種別:新築
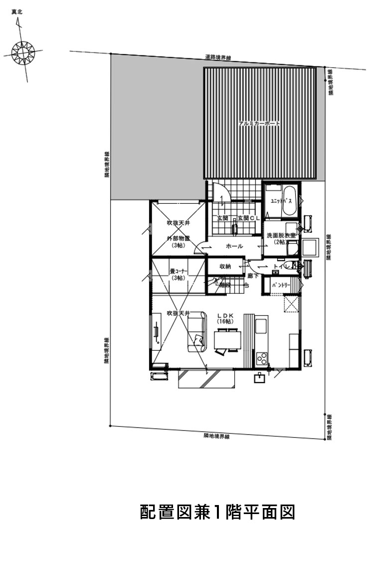
敷地面積:189.00m²(57.17坪)
延床面積:102.67m²(31.05坪)
UA値:0.31W/m²・K
C値:0.3cm²/m²






| 【データ】 | ||
| 構造 | 軸組工法(無垢材+プレカット+HSS金物) | |
| 階数 | 2階建て(一部小屋裏) | |
| 敷地面積 | 189.00m²(57.17坪) | |
| 建築面積 |
63.76m²(19.28坪) | |
| 1階床面積 | 61.27m²(18.53坪) | |
| 2階床面積 | 41.40m²(12.52坪) | |
| 延べ床面積 | 102.67m²(31.05坪) | |
| 小屋裏床面積 | 19.04m²(5.75坪) | |
| 施工床面積 | 105.15m²(31.80坪) | |
| 断熱工法 | 外張り断熱工法+充填断熱 | |
| C値(相当隙間面積) | 0.3cm²/m²以下 | |
| UA値(外皮平均熱貫流率) | 0.31W/m²・K | |
| 省エネ等級 | 6等級 | |
| 換気システム | 第三種24時間型換気システム |
| 【主な仕様】 | ||
| 屋根 | ガルバリウム鋼板t0.35 | |
| 外壁 | 窯業系サイディングt18 | |
| 玄関ドア | 断熱玄関ドア | |
| 窓 | 樹脂製断熱サッシ | |
| 玄関床 | 300角磁器質タイル | |
| 室内床 | パインフロアー | |
| 室内壁 | クロス | |
| 室内天井 | クロス | |
| 【主な設備】 | ||
| システムキッチン | W2550 食洗器+IH | |
| カップボード | W1650 | |
| 洗面化粧台 | W750 | |
| 浴室 | 1616 | |
| トイレ | 洋風便器シャワー付き | |
| 給湯器 | エコキュート | |
| 冷暖房 | ヒートポンプエアコン |